Купить детали систем вентиляции оптом в Краснодаре | Prommetiz.pro
Сверху над шапкой
Краснодар
Краснодар
О компании
Доставка и оплата
Акции
Для торгующих организаций
Контакты
    8 (938) 516-75-54
    8 (938) 516-75-54Отдел продаж
    Заказать звонок
    E-mail
    info@prommetiz.pro
    Адрес
    350059, г. Краснодар, ул. Уральская, д. 126/1
    Режим работы
    Пн.- Чт.: 08:00-18:00 Пт.: 08:00-17:00 Сб.- Вс.: выходной
    Связаться с нами
    Заказать звонок
    info@prommetiz.pro
    ООО Компания ПРОММЕТИЗ
    • Крепеж
      Крепеж
      • Анкеры
      • Болты
      • Виброизоляционный крепеж
      • Винты
      • Гайки
      • Гвозди
      • Шпильки резьбовые
      • Шайбы
      • Саморезы
      • Перфорированный крепеж
      • Заклепки
      • Дюбели
      • Скобы для степлера
      • Еще
    • Скобяные изделия
      Скобяные изделия
      • Заглушки / Мебельная фурнитура
      • Петли / Фурнитура для ворот
      • Смазочные материалы
      • Специальный крепеж
      • Такелаж
      • Еще
    • Для систем вентиляции
      Для систем вентиляции
      • Ленты
      • Опоры
      • Скобы
      • Струбцины монтажные
      • Уголки
      • Шины
      • Еще
    • Инструменты
      Инструменты
      • Аксессуары для электроинструмента
      • Измерительно-разметочный инструмент
      • Инструменты для покраски
      • Пневмоинструмент
      • Ручной инструмент
      • Сварочное оборудование
      • Стремянки
      • Фиксирующий инструмент
      • Электроинструмент
      • Еще
    • Краски
      Краски
      • Емкости для краски
      • Клеи
      • Краски
      • Малярные и упаковочные ленты
      • Пены, герметики
      • Еще
    • Монтаж окон
      Монтаж окон
    • Отопительное оборудование
      Отопительное оборудование
      • Аксессуары для автономных отопителей
      • Газовые баллоны
      • Газовые редукторы давления (лягушки)
    • Пленки, Гидро и Пароизоляция
      Пленки, Гидро и Пароизоляция
    • Сад
      Сад
      • Аксессуары для садовой техники
      • Садовый инвентарь
      • Товары для полива
    • Средства индивидуальной защиты
      Средства индивидуальной защиты
      • Защита зрения
      • Каски
      • Перчатки и краги
      • Пояса
      • Респираторы и защитные маски
      • Еще
    • Стройматериалы
      Стройматериалы
      • Арматура
      • Ветро-влагозащита и пароизоляция кровли и фасадов
      • Кровля
      • Строительные расходные материалы
    • Тара
      Тара
    • Укладка плитки
      Укладка плитки
    • Уплотнители
      Уплотнители
    • Хозтовары
      Хозтовары
    • Электротовары
      Электротовары
      • Изолента
      • Кабель
      • Колодки
      • Крепеж проводов и кабелей
    Каталог
    По всему сайту
    По каталогу
    Войти
    0 Корзина
    ООО Компания ПРОММЕТИЗ
    Телефоны
    8 (938) 516-75-54 Отдел продаж
    Заказать звонок
    0
    ООО Компания ПРОММЕТИЗ
    • Кабинет
    • Краснодар
      • Назад
      • Города
    • 0 Корзина
    • 8 (938) 516-75-54 Отдел продаж
      • Назад
      • Телефоны
      • 8 (938) 516-75-54 Отдел продаж
      • Заказать звонок
    • info@prommetiz.pro
    • 350059, г. Краснодар, ул. Уральская, д. 126/1
    • Пн.- Чт.: 08:00-18:00 Пт.: 08:00-17:00 Сб.- Вс.: выходной
    Главная
    –
    Каталог
    –
    Детали для систем вентиляции
    Крепеж
    Скобяные изделия
    Инструменты
    Краски
    Монтаж окон
    Отопительное оборудование
    Пленки, Гидро и Пароизоляция
    Сад
    Средства индивидуальной защиты
    Стройматериалы
    Тара
    Укладка плитки
    Уплотнители
    Хозтовары
    Электротовары

    Детали для систем вентиляции

    29 товаров
    Ленты Ленты
    Опоры Опоры
    Скобы Скобы
    Струбцины монтажные Струбцины монтажные
    Уголки Уголки
    Шины Шины
    Фильтр
    Сначала дорогие
    Сначала дешевые
    Сначала дорогие
    Быстрый просмотр
    Кронштейн оц. U-образный-600
    384 ₽/шт
    Кронштейн консольный с опорой оц. U-образный-600
    0
    В корзину
    Быстрый просмотр
    консоль кронштейн купить в краснодаре
    357 ₽/шт
    Кронштейн консольный с опорой оц. U-образный-500
    0
    В корзину
    Быстрый просмотр
    купить кронштейн
    340 ₽/шт
    Кронштейн консольный с опорой оц. U-образный-400
    0
    В корзину
    Быстрый просмотр
    купить консоль кронштейн в краснодаре
    320 ₽/шт
    Кронштейн консольный с опорой оц. U-образный-300
    0
    В корзину
    Быстрый просмотр
    купить кронштейн опт и розница
    294 ₽/шт
    Кронштейн консольный с опорой оц. U-образный-250
    0
    В корзину
    Быстрый просмотр
    купить кронштейн в краснодаре купить опт и розница
    266 ₽/шт
    Кронштейн консольный с опорой оц. U-образный-200
    0
    В корзину
    Быстрый просмотр
    материалы для вентиляционных систем оптом в краснодаре
    230 ₽/м
    Траверса монтажная 30х30х2мм (2м)
    0
    В корзину
    Быстрый просмотр
    траверса с-образный профиль
    150 ₽/м
    Траверса монтажная 38х40 (3м) Профиль-С
    0
    В корзину
    Быстрый просмотр
    лента не пропускающая воду и воздух отличного качества купить краснодар
    114 ₽/рул
    Лента межфланцевая уплотнительная 5х20 (10м)
    0
    В корзину
    Быстрый просмотр
    лента не пропускающая воду и воздух отличного качества купить краснодар
    91 ₽/рул
    Лента межфланцевая уплотнительная 5х15 (10м)
    0
    В корзину
    Быстрый просмотр
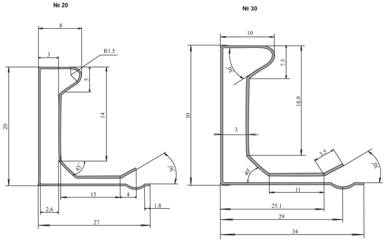
    шина монтажная вентиляционная №30 шина монтажная безгерметика
    75 ₽/пог
    Шина монтажная №30 (3м) без герметика
    0
    В корзину
    Быстрый просмотр
    траверса профиль вентиляционный оптом в краснодаре
    69 ₽/м
    Траверса монтажная 20х30 (3м) Профиль-С
    0
    В корзину
    Быстрый просмотр
    лента не пропускающая воду и воздух отличного качества купить краснодар
    63 ₽/рул
    Лента межфланцевая уплотнительная 5х10 (10м)
    0
    В корзину
    Быстрый просмотр
    Струбцина под шпильку м10 Лучевой зажим
    56 ₽/шт
    Струбцина монтажная под шпильку М10
    0
    В корзину
    Быстрый просмотр
    шина фланцевая монтажная вентиляционная №20 уголок монтажный вентиляционный №20 шина монтажная без герметика
    48 ₽/пог
    Шина монтажная №20 (3м) без герметика
    0
    В корзину
    Быстрый просмотр
    струбцина под шпильку м8 CM300800  Лучевой зажим
    46 ₽/шт
    Струбцина монтажная под шпильку М8
    0
    В корзину
    Быстрый просмотр
    виброизолятор
    21 ₽/шт
    Крепеж с виброизолятором V-образный М8 (упаковка 100 шт)
    0
    В корзину
    Быстрый просмотр
    купить опору с комбинированной гайкой гайка опора
    20 ₽/шт
    Опора с комби-гайкой М8/10
    0
    В корзину
    Быстрый просмотр
    fvz m10 крепление для профнастила
    19 ₽/шт
    Крепление для профнастила V-образное FVZ M10 с нерегулир.гайкой
    0
    В корзину
    Быстрый просмотр
    Крепление для профнастила FVZ M8
    19 ₽/шт
    Крепление для профнастила V-образное FVZ M8 с нерегулир.гайкой
    0
    В корзину
    Загрузить еще
    1 2
    Категория
    • Для систем вентиляции
      • Ленты
      • Опоры
      • Скобы
      • Струбцины монтажные
      • Уголки
      • Шины
    Фильтр
    Розничная
    6
    101
    195
    290
    384
    Длина
    Показать все
    Диаметр резьбы
    Материал
    Покрытие
    Ширина
    Выбрано 0 Показать0
    Показать 0
    Каталог
    О компании
    Доставка и оплата
    Акции
    Вакансии
    Для торгующих организаций
    Новости
    Статьи
    Контакты
    Сертификаты
    8 (938) 516-75-54
    8 (938) 516-75-54Отдел продаж
    Заказать звонок
    E-mail
    info@prommetiz.pro
    Адрес
    350059, г. Краснодар, ул. Уральская, д. 126/1
    Режим работы
    Пн.- Чт.: 08:00-18:00 Пт.: 08:00-17:00 Сб.- Вс.: выходной
    Связаться с нами
    info@prommetiz.pro
    350059, г. Краснодар, ул. Уральская, д. 126/1
    © 2026 Промметиз
    Политика конфидициальности
    Главная Каталог 0 Корзина Кабинет Акции Галерея Контакты Услуги Бренды Отзывы Компания Лицензии Документы Реквизиты Регион Поиск Блог Обзоры